Lush Landscape

This seriously stunning solar powered 3 bedroom family home is located within the quiet suburban setting of Bakewell and tucked into a court setting with only local traffic passing by. The home has gated entry and fenced perimeters that showcase the lush tropical gardens within. Wide open lawns offer space for the kids and pets to play, encased with tropical colour that is easy care yet highly impressive.

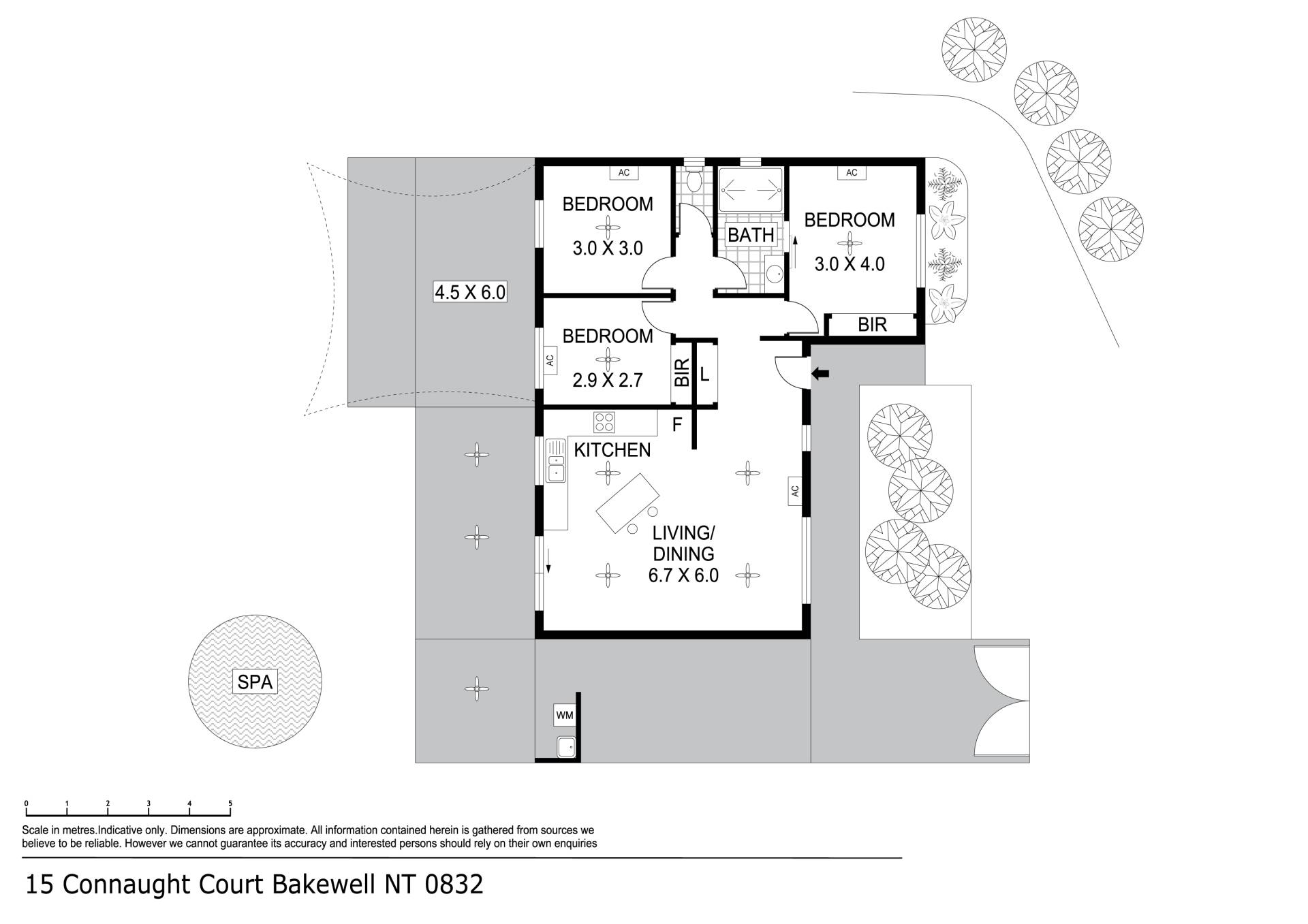
Within the home is an open plan living, dining and kitchen area with tiled flooring and A/C. the kitchen includes an island bench along with SS appliances, dishwasher and pantry. Of the three bedrooms, each is well designed with tiled flooring and A/C while the master includes two way access to the modern renovated bathroom.

Across the back of the home is a verandah and outdoor entertaining area that overlooks more lush lawns and gardens with a swimming pool under the shade of a sail. There is a garden shed for the tools and supplies. On the roof are solar panels to help keep your bills low. The gardens have been designed and installed by professionals so you know it is done right and wont take much to maintain.

This gorgeous property is perfect for the couple, the family or the downsizer seeking a move in ready resort style property to call home.

•Solid brick family home on a large allotment of land
•Double gated entry with a single carport parking bay and room for a second or the boat
•Lush tropical gardens surround the home are irrigated and easy care
•Laundry room is hosted on the verandah sheltered under the roofline
•Back verandah overlooks the gorgeous gardens and wide open green lawns
•In ground plunge pool surrounded with leafy foliage and shade sail overhead
•Garden shed for the tools and supplies is a handy addition to the home
•Open plan living, dining and kitchen area with tiled flooring underfoot
•3 bedrooms each with A/C and large windows to frame the gardens
•Main bedroom has two way access to the bathroom
•Bathroom is modern and well designed with sep toilet
•Solar panels on the roof to keep your power bills low

Around the Suburb:

  • Ride to a local parks with play areas for the kids
  • Primary School in Bakewell is within walking distance
  • Nearby to major retailers, employment options and takeaway meals
  • 3 minutes from the Palmerston CBD, markets throughout the Dry Season

Easements: (none found)
Area Under Title: 700sqm
Council Rates: $1,737 per annum approx
Planning Zone: LR (Low Density Residential)
Settlement: 30day
Deposit 5% or variation on request
Year Built: 1999
Removal of kitchen wall: 2002
Shed: 2000

3 1 2 700 m2
Address 15 Connaught Court, Bakewell
Price SOLD for $515,000
Property Type Residential
Property ID 392
Category House
Land Area 700 m2

Agent Details

Nikki Vazanellis photo

Nikki Vazanellis

0450 473 710
View Profile